貸店舗 浪速区難波中 約56.51坪 坪単価約7,600円 好立地 角地 設備有
浪速区役所近く、なんばパークスすぐそば、駅近、周辺に役所も多い地域です。
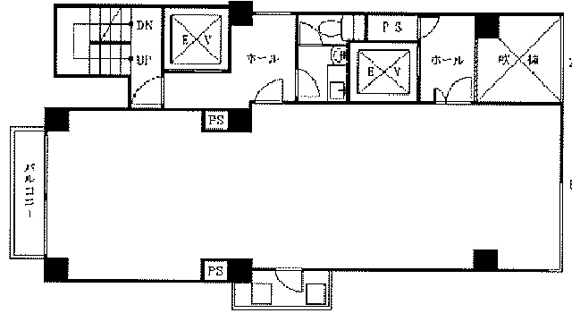
地上6階建テナントビルの3階部分、エレベーター・空調設備有り
賃貸条件
保証金…1,200,000円
解約引… 300,000円
賃料 … 430,000円
共益費… 32,000円(水道代実費)
所在地 大阪市浪速区難波中3丁目
交通機関 南海本線…難波駅 徒歩5分
![]()
(写真・図面をクリックすると拡大します)
物件概要
専有面積…約56.51坪
坪単価 …約7,600円
構造 …鉄骨造6階建
現況 …空
入居 …即可
周辺施設
浪速区役所まで …約50m
浪速税務署まで …約20m
浪速郵便局まで …約80m
難波社会保険事務所まで…約150m
パークスタワーまで …約250m
ヤマダ電機まで …約80m
詳しくはtel:06-6776-0007
リア・ライブ岸川まで、お気軽にお問い合わせ下さい。
物件ナンバー08080101
TrackBack URI : https://www.rearlive.co.jp/blog/archives/9034/trackback
Comments (0)




借りたい
貸したい
買いたい
売りたい
建築相談
会議室申込