格安 1LDK 賃貸 大阪 四天王寺
地下鉄 谷町線 四天王寺前夕陽ヶ丘駅 徒歩7分
← クリックで拡大表示されます
地下鉄 谷町線・千日前線 谷町九丁目駅 徒歩7分
← クリックで拡大表示されます
鉄筋コンクリート造 5階建て
築古年
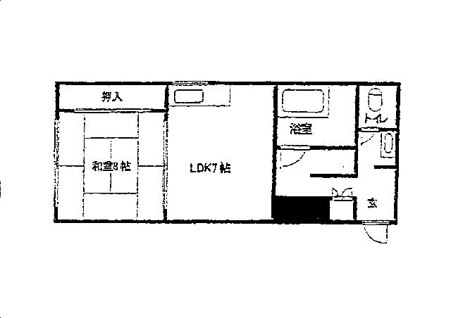
【間取り略図】
賃料¥45,000-
共益費¥5,000-
敷金 10万円
礼金 20万円
スーパー食品館ラピタまで徒歩1分
← クリックで拡大表示されます
ファミリーマート天王寺生玉町店まで徒歩2分
大阪市信用金庫谷町支店まで徒歩5分
天王寺区の不動産 リア・ライブ 堀口始
0120-030-400
大阪の不動産情報のメルマガは、
大阪エリアの不動産情報メルマガ
天王寺区で物件をお探しの方は、
天王寺区限定 不動産ブログ 賃貸 大阪
マンスリーウィークリー物件は、
大阪市内のマンスリー・ウィークリー情報館
TrackBack URI : https://www.rearlive.co.jp/blog/archives/3358/trackback
Comments (0)




借りたい
貸したい
買いたい
売りたい
建築相談
会議室申込